Status: Completed 2023
Location: Kent
Project Description:
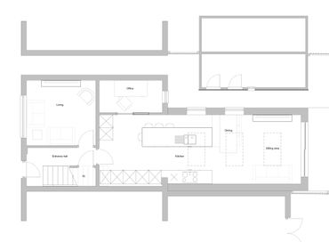
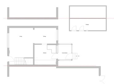
Murtagh Studio undertook the transformation of a mid-terraced home to accommodate a young family expecting their second child. The project involved a single-storey rear extension and a reconfiguration of the ground floor to create an open-plan living and office space. Given the confined terraced plot, the design aimed to maximise space by reconfiguring the ground floor and improving circulation throughout the home. Large glazed openings enhance the connection to the garden, while strategic layout modifications create a clear sightline from the entrance through to the rear.
To balance openness and functionality, distinct zones were created within the space, providing flexibility for both work and relaxation. The integration of natural materials and a neutral colour palette helps to create a warm, inviting atmosphere. By optimizing storage solutions and ensuring an efficient spatial arrangement, the home now offers a harmonious blend of modern aesthetics and practicality, perfectly suited to the family's lifestyle. Carefully designed joinery and built-in storage solutions further enhance the usability of the space, ensuring that every corner of the home is utilized efficiently.
Additionally, the introduction of thoughtful lighting design and subtle material contrasts adds depth and character to the interiors. The kitchen area, positioned at the heart of the home, fosters a strong connection between living and working zones while offering a social space for the family. The extension and layout reconfiguration have transformed the home into a functional yet beautifully designed space, supporting the evolving needs of the growing family.




